一、集团公司介绍
太阳城娱乐官网成立于2000年10月,是专业从事工程咨询、工程设计、工程监理、工程造价、工程招标代理、城乡规划、全过程工程咨询、太阳城娱乐官网评估等项目管理技术咨询服务公司。集团公司现下设项目管理公司、全过程咨询公司、工程咨询公司、设计院、造价公司、监理公司、招标代理公司、太阳城娱乐官网公司、工程后评价公司、装饰公司。具有住建部颁发的工程监理综合资质、工程招标代理甲级资质、工程造价咨询甲级资质、建筑行业建筑工程设计甲级资质、国家发改委颁发的工程咨询甲级资信单位,多个业务板块位于全省30强,连续多年被省住建厅、省交通厅、省水利厅、省通信管理局联合认定为全过程工程咨询优秀单位,综合排名第一。
二、集团公司组织架构

三、咨询公司简介
工程咨询公司系集团公司业务板块之一。目前公司拥有工程咨询建筑、市政公用工程甲级资信,农业、林业、公路及电力工程乙级资信。咨询公司现有工程师35人,其中国家注册咨询工程师20名,咨询业务主要涉及建筑、市政、公路、电力、农林等行业和专业。咨询公司先后承接了500多个工程项目咨询业务,总投资额约600多亿元,受到业界的广泛认可。
四、咨询公司组织架构
咨询公司根据行业需要和业务的不断发展,组建了专业的工程咨询架构。组织架构健全,专业和人员配套齐全,运行机制高效。

五、咨询公司业务服务定位
咨询公司服务定位主要为政府和企业投资项目提供前期技术咨询,如:编制项目建议书、可行性研究报告、项目申请报告、资金申请报告、节能报告、交通影响评价报告及社会稳定性风险评估等。咨询公司提供专业、全面和可靠的工程咨询服务,以满足客户在工程项目中的需求,并促进项目的成功实施。
六、咨询公司主要业绩
1、高店乡岗圩双丰安置点建设项目-项目建议书
项目位于合肥市肥西县高店乡,约139.48亩,总建筑面积约28.7万平方米,总投资16.4亿元。

2、中安创谷科技园三期项目-可行性研究报告
项目拟在合肥高新区征地249亩,新增总建筑面积58万平方米,总投资40.37亿元。

3、定远县雨淋山国防教育基地建设工程项目-可行性研究报告
项目总建筑面积4.4万平方米,总投资2.05亿元。

4、庐江县申山绿苑安置点二期建设项目-可行性研究报告
项目建设地址位于庐江县城区西北侧,项目总建筑面积34.23万平方米,总投资12亿元。

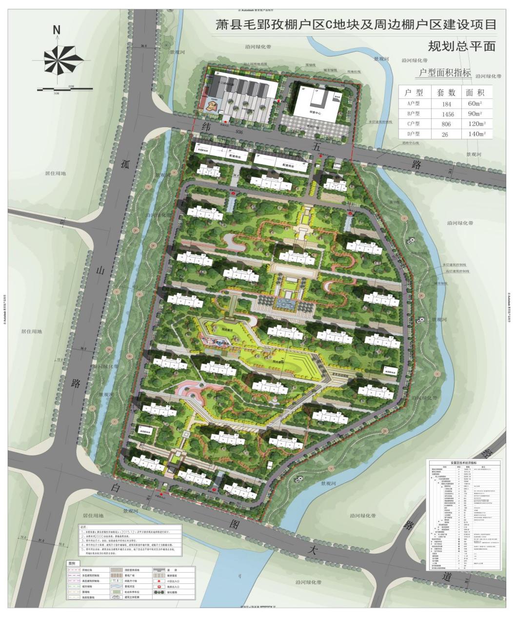
5、萧县毛郢孜棚户区C地块及周边棚户区建设项目-可行性研究报告
项目建设地址位于萧县民安大道北侧,总用地面积13万平方米,项目总建筑面积33.45万平方米。

6、新桥商业综合体项目-可行性研究报告
项目位于淮南市寿县新桥国际产业园迎宾大道与寿州大道交口西北侧,总建筑面积约10.2万平方米。

7、中安创谷科技园四期项目-可行性研究报告
项目位于合肥市高新区,北至望江西路,南至燕子河路,东至方兴大道,西至火龙地路。本项目拟在合肥高新区征地212.6亩(含四期建设用地206.3亩,变电站用地6.3亩),四期新增总建筑面积52.9万平方米。

七、咨询公司主要荣誉


